Eladó Téglalakás, Szolnok

#185301323

Eladó Téglalakás

34.9 millió Ft

Szolnok Belváros
Alapterület:
62 m2
Szobák száma:
2
Állapot:
Építési mód:
Tégla

Kérjen személyes bemutatást!
Adja meg adatait, és hogy mikor érne rá!

Az Adatkezelési tájékoztatót elolvastam és elfogadom.

Megfelelő időpontok

Hétköznap délelőtt
Hétköznap délután
Hétköznap este
Hétvégén délelőtt
Hétvégén délután
Hétvégén este
Kérés elküldése
3. Emelet
Nincs
Felújításra szoruló
Konvektor
Utcára
4
Komfort
Nem akadálymentesített
Bevezetve (230 Volt)
Van, saját vízórával
Vezetékes gáz
Közműhálózatba bekötve

Belvárosi , 62 m2-es téglakás , csendes környezetben - várja igényes új tulajdonosát !

Képzelje el, hogy egy gyönyörű, tágas tégla lakásban él Szolnok szívében, ahol minden kényelem és szolgáltatás karnyújtásnyira van.

Ez a 62 négyzetméteres ingatlan most eladó, és ideális választás lehet azok számára, akik a városi életstílust keresik, miközben a nyugalomra is vágynak.

A lakás jó állapotban van, a modern életvitelhez szükséges kényelmet biztosítva.

Az igényes karbantartásnak köszönhetően : teljes villanyhálózat csere ; igényes egyedi konyhabútor - gépesítve ; fürdőszobában új átfolyós vízmelegítő ; hűtő-fűtő klíma ; hideg és melegburkolatok újultak meg . 

A közös költség mindössze 13 888 forint, ami kedvező lehetőséget kínál a fenntartás terén.

A közösköltségből , a tűzfal- és tetőszigetelés valósult meg .

Az ingatlan irányára 36 900 000 forint, ami figyelembe véve a belvárosi elhelyezkedést és a téglaépítés előnyeit, kiváló befektetésnek számít.

Ne hagyja ki ezt a remek lehetőséget, hiszen egy ilyen lakás gyorsan gazdára talál!

Jöjjön el, nézze meg, és tapasztalja meg személyesen ezt a csodás otthont!

Kun Mariann : 06 70/320-9880

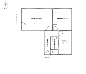
Helyiség Méret (m2)
Szoba 25.6
Szoba 14.7
Konyha 7.8
Fürdőszoba 3.7
WC 0.8
Előszoba 8.3
Loggia 5.7

Kérdése van?
Adja meg adatait és felhívjuk!

Az Adatkezelési tájékoztatót elolvastam és elfogadom.
Üzenet küldése